Architektonicko-urbanistická súťaž návrhov
„YIT zóna Mlynské nivy“, 2020

Spoločnosť YIT Slovakia, vyhlásila architektonicko-urbanistickú súťaž na riešenie lokality "YIT zóna Mlynské nivy". Cieľom súťaže bolo vytvoriť novú atraktívnu mestskú zónu, ktorá by doplnila už vysoko urbanizované a rýchlo sa rozvíjajúce územie Bratislavy. Vyhodnotenie a vyhlásenie výsledkov súťaže sa uskutočnilo 17. júna 2020.

Výsledky súťaže

1. miesto

Sadovsky&Architects
v spolupráci s Marko&Placemakers


Návrh bol porotou hodnotený ako výnimočne vysoko vyhovujúci.

Z hodnotenia poroty:

  • silná idea, ktorá je zrozumiteľná a logická - vytvorenie hrany zástavby dookola riešeného územia, nastavenie čitateľnej štruktúry, kvalitný návrh uceleného vnútorného parku na rastlom teréne, vlastná identita,
  • park na rastlom teréne zaručuje jeho kvalitu, umožňuje ochladzovanie prostredia a zadržiavanie vody v území, dobre spracovaný ekologický koncept,
  • dodržanie línie bulváru,
  • umiestnenie veže s administratívnou funkciou presne na os budúceho bulváru a riešenie okolitých ulíc so stromoradím,
  • hmotovo-priestorová štruktúra je vhodným kompromisom medzi sídliskovou a mestskou štruktúrou,
  • návrh vytvára potenciál udržania vysokej kvality pri realizácii a prínos množstva pozitívnych prvkov aj pre širšie okolie v mierke mestskej časti a celého mesta.

2. miesto

What Architects.

Návrh bol porotou hodnotený ako vysoko vyhovujúci.

Z hodnotenia poroty:

  • idea návrhu je zrozumiteľná a logická - hrana nižšej zástavby dookola riešeného územia, návrh hmotovo-priestorovej štruktúry, návrh vnútorného dvora, kde je veľkým prínosom najmä originálne a pedantné riešenie verejných priestranstiev s odkazom na pôvodný charakter krajiny,
  • centrálny park má vhodné ohraničenie akcentami (budova administratívy a zachovaný priemyselný dopravník),
  • mäkký prechod medzi centrálnym priestorom parku a poloverejným priestorom dvorov,
  • práca s bulvárom Mlynské nivy a jeho zakomponovanie do návrhu,
  • návrh prinesie množstvo pozitívnych prvkov aj pre širšie okolie v mierke mestskej časti a celého mesta.

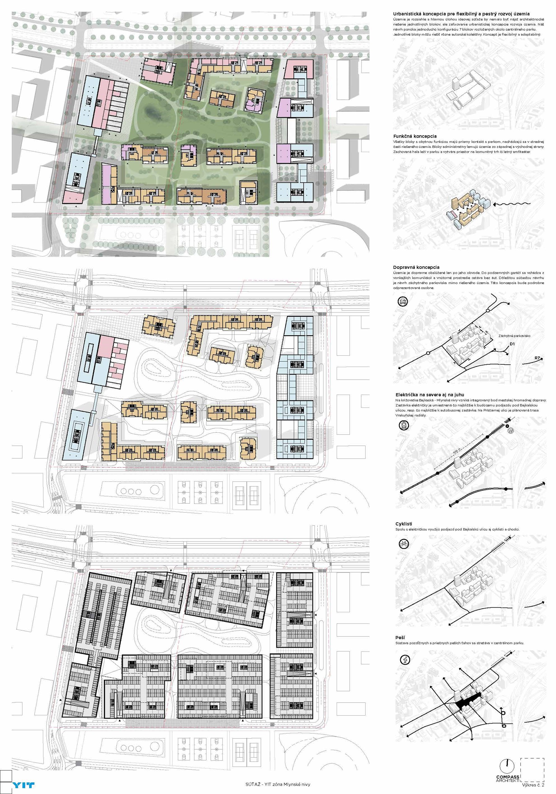
3. miesto

COMPASS

Návrh bol porotou hodnotený ako nadštandardne vyhovujúci.

Z hodnotenia poroty:

  • výnimočne rozvinuté uvažovanie o návrhu v rámci širších súvislostí mesta (riešenie verejnej dopravy, automobilová doprava, záchytné parkoviská),
  • dobré riešenie celého budúceho bulváru Mlynské nivy a nadväznosť územia na bulvár.

3. miesto

CHYBIK + KRISTOF

Návrh bol porotou hodnotený ako nadštandardne vyhovujúci.

Z hodnotenia poroty:

  • park v centre s dobrou mierkou a napojením na okolité objekty,
  • presvedčivá prezentácia spôsobu modulárnej výstavby.

Odmena

tím firiem - Grido architekti / .team ABJ

Návrh bol porotou hodnotený ako nadštandardne vyhovujúci.

Z hodnotenia poroty:

  • pozitívna hlavná myšlienka návrhu - zelené mesto lemované zástavbou izolujúcou od hlučného mestského prostredia a bytové objekty vo dvore – myšlienka s potenciálom rozvinutia.

Zvyšné súťažné návrhy umiestnené spoločne na 5.-10.mieste bez určenia poradia

BOUDA MASÁR

DAM architekti

Igor Palčo

PROJEKTIL ARCHITEKTI

SIEBERT + TALAŠ

O súťaži

Súťaž

Typológia súťaže:

- architektonicko-urbanistická
- projektová
- jednokolová
- užšia (vyzvaná)
- domáca (slovensko–česká)
- odsúhlasená SKA

Plán je udeliť ceny za prvé 3 miesta a ďalšie dve odmeny.

Zloženie poroty:

Zaregistrované projektové návrhy budú vyhodnocovať zástupcovia YIT v spolupráci s odborným zástupcom Metropolitného inštitútu Bratislavy,  odborným zástupcom Mestskej časti Bratislava - Ružinov a ďalšími renomovanými architektmi:

Riadni členovia poroty

Nezávislí na vyhlasovateľovi:

- Ing. arch. Roman Žitňanský, autorizovaný architekt SKA, Metropolitného inštitútu Bratislavy
- Ing. arch. Jela Plencnerová, autorizovaná architekt SKA, mestskej časti Bratislava - Ružinov
- Ing. arch Ľubomír Závodný, autorizovaný architekt SKA
- Ing. arch. Pavel Hnilička, Dipl. NDS ETHZ, autorizovaný architekt

Závislí na vyhlasovateľovi:    

- Ing. arch. Radek Pšenička, predseda poroty
- Ing. Eva Zákopčanová
- Ing. arch. Tomáš Baník, autorizovaný architekt SKA

Náhradníci poroty
Nezávislí na vyhlasovateľovi:

- Ing. Michal Marcinov, autorizovaný krajinný architekt SKA
- Ing. arch. Štefan Polakovič, autorizovaný architekt SKA
- Ing. arch. Iľja Skoček, autorizovaný architekt SKA

Závislí na vyhlasovateľovi:

- Ing. Petra Truchla
- Ing. arch. Juraj Mišák
- Ing. arch. Martin Tribus, autorizovaný architekt SKA


Odborní poradcovia:

- Ing. Milan Janák, Simulácie Budov, s.r.o., odborný poradca v oblasti svetlotechniky,
- Ing. Tibor Schlosser, DOTIS Consult s.r.o., odborný poradca v oblasti dopravy,
- Ing. arch. Lorant Krajcsovics, PhD., Salvis, s.r.o., odborný poradca v oblasti verejných priestorov, sociológie, krajinnej architektúry a trvalej udržateľnosti.

Vyzvaní súťažiaci:

- BOUDA MASÁR architekti s.r.o. 
- Compass, s.r.o. 
- DAM architekti s.r.o.
- DKLN, s.r.o. 
- CHYBIK+KRISTOF ASSOCIATED ARCHITECTS s.r.o. 
- Igor PALČO s.r.o. 
- PROJEKTIL ARCHITEKTI s.r.o.
- Sadovsky&Architects
- SIEBERT + TALAŠ, spol. s r.o.
- .team ABJ, s.r.o. + Grido Architekti, s.r.o.
- What architects s.r.o.

Základné míľniky súťaže:

- 28. 2. 2020       Vyhlásenie súťaže
- mar. - máj 2020   Komunikácia so súťažiacimi a porotcami
- 22. 5. 2020       Odovzdanie návrhov
- 09. - 10. 6. 2020  Predstavenie súťažných návrhov
- 11. 6. 2020       Vyhodnotenie súťaže - rozhodnutie poroty
- 17. 6. 2020       Slávnostné odovzdanie cien a odmien s prezentáciou víťazného návrhu/víťazných návrhov

 

Vízia YIT

Zámerom súťaže je nájsť najvhodnejší architektonicko-urbanistický koncept revitalizácie územia bývalej panelárne a priľahlého priemyselného areálu na Mlynských nivách. Hlavným cieľom je premena tohto typického brownfieldu na modernú mestskú štvrť plnú pulzujúceho a rôznorodého života vrátane širokej a pestrej ponuky kvalitného bývania rôznych segmentov a kategórií vrátane kvalitného nájomného bývania. V území sa ráta aj s modernými kancelárskymi a obchodnými priestormi, potrebnou občianskou vybavenosťou, ako aj kvalitnými verejnými priestormi pre oddych, relax a regeneráciu. Projekt by sa tak mohol stať ďalším epicentrom rozvoja v západnej časti budúceho bulváru Mlynské nivy, ktorý máme ambíciu otvoriť smerom k Dunaju a Zimnému prístavu. Spoločenský a ekonomický rozvoj v symbióze s ochranou a tvorbou kvalitného životného prostredia sú základné princípy nových Mlynských nív na mape Bratislavy 21.storočia.

Lokalita a história územia

Projekt sa nachádza v oblasti bývalých lužných lesov a meandrov rieky Dunaj, ktorá dlhodobo formovala toto územie. To potvrdzujú aj bohaté štrkové sedimenty v podloží.

Kedysi cez ulicu Mlynské nivy tiekla rieka, ktorá ju pretínala na dve časti. Dunaj pritom nebol regulovaný. Jedno z jeho ramien – Malé Novozámocké rameno (nazývané neskôr aj Mlynské) tieklo jeho ľavým brehom. Mlynské rameno bolo v podstate rovnobežné s ulicami Vajanského nábrežie, Dostojevského rad a Továrenská a pokračovalo ďalej na sever. Približne na úrovni dnešnej ulice Mlynské nivy viedla cesta do Prievozu a cez vodu sa prechádzalo po drevenom moste. Celá oblasť Mlynských nív tak bola kedysi vlastne ostrovom. Na Mlynskom ramene sa vtedy nachádzali vodné mlyny, podľa ktorých táto oblasť získala svoje dnešné pomenovanie.

Identitu tohto miesta poznačil ďalší priemyselný rozvoj a v okolí sa usídlili továrne a skladové areály, ktoré definujú charakter tohto územia aj dnes. Časť už zaniknutých objektov prešla transformáciou na administratívne centrá, no územie si zachováva charakter priemyselnej zóny  bez atraktívnych priestorov pre oddych a rekreáciu.

Tesná blízkosť Dunaja a história lužných lesov poskytujú veľký potenciál pre nadviazanie na jedinečný charakter tohto územia. Na opačnej strane Dunaja sa nachádza chránené územie európskeho významu Bratislavské luhy, časť chránený areál Soví les, začínajúci pod mostom Apollo a končiaci za areálom Ekonomickej univerzity.   Vzácne chránené biotopy  dubovo-brestovo-jaseňových lesov a vŕbovo-topoľových a jelšových lesov nám napovedajú aký bol charakter územia Mlynských nív kedysi.